308 Tartan Road | Hopkins | $233,000
308 Tartan Road Photo 1
308 Tartan Road Photo 2
308 Tartan Road Photo 3
308 Tartan Road Photo 4
308 Tartan Road Photo 5
308 Tartan Road Photo 6
308 Tartan Road Photo 7
308 Tartan Road Photo 8
SHOW DETAILS
308 Tartan Road Hopkins, SC 29061 $233,000
3 BEDS
2.5 BATHS
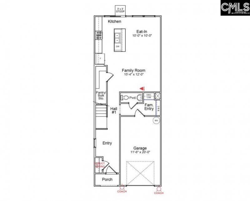
1,648 SQ. FT.

308 Tartan RoadHopkins, SC 29061

For SALE Single Family ACTIVE
$233,000
EST. 586.52/MO CALCULATE
3 BEDS
2.5 BATHS
1,648 SQ. FT.

Property Description

*$5000 in options or up to $8,500 in closing cost with Silverton Mortgage and MGC Law. Located in the sought-after Laurinton Farms community, this Douglas floor plan offers stylish, upgraded living in a beautifully designed two-story single-family home. The open-concept kitchen features crisp white cabinetry paired with Luna Pearl granite countertops, a spacious island, brushed satin nickel hardware, and a classic white glossy subway tile backsplash in an offset pattern. Crown molding adds a sophisticated touch throughout. Oyster Oak luxury vinyl plank flooring flows seamlessly through the main areas including the kitchen, eat-in area, family room, entry, laundry, pantry, and baths offering both durability and warmth. Upstairs, plush Alcot Way Concrete carpet softens the bedrooms and hallways, creating a cozy retreat. The primary boasts raised vanities with quartz counters, a boxed ceiling detail, and a beautifully tiled walk-in shower with glass bypass doors for a spa-like finish. This home blends timeless design with modern upgrades, perfect for those seeking comfort, style, and quality craftsmanship. Don't miss your chance to own this stunning home schedule your private tour today and experience Laurinton Farms living at its finest! Disclaimer: CMLS has not reviewed and, therefore, does not endorse vendors who may appear in listings.

Property Details

  • MLS ID620161
  • Property TypeResidential - Single Family
  • Garage1 car attached
  • Lot Dimensions0.14 Acre(s)
  • Lot Size0.14 Acres
  • Stories2.0
  • acres0.14

Listed By / Shown By

Listed By

Agency Name: Clayton Properties Group Inc

Columbia SC MLS

Shown By

Agency Title: Carolina One Real Estate
Agency Phone: (843) 203-5016

Columbia SC MLS

IDX logo

308 Tartan Road photo 4
308 Tartan Road photo 4
308 Tartan Road photo 4
308 Tartan Road photo 4

Web address QR Codes

308 Tartan Road

©OneHomeValue

Location 308 Tartan Road

Neighborhood Map

Local Content

Neighborhood Hero

Ask A Question 308 Tartan Road, Hopkins, SC 29061

IDX logo

Disclaimer: All information deemed reliable but not guaranteed. All properties are subject to prior sale, change or withdrawal. Neither listing broker(s) or information provider(s) shall be responsible for any typographical errors, misinformation, misprints and shall be held totally harmless. Listing(s) information is provided for consumers personal, non-commercial use and may not be used for any purpose other than to identify prospective properties consumers may be interested in purchasing. Information on this site was last updated 03/05/2026. The listing information on this page last changed on 03/05/2026. The data relating to real estate for sale on this website comes in part from the Internet Data Exchange program of Delta Media Group MLS (last updated Thu 03/05/2026 12:08:11 AM EST) or Pee Dee MLS (last updated Wed 03/04/2026 10:44:28 PM EST) or CCAR MLS (last updated Wed 03/04/2026 11:26:49 PM EST) or Columbia SC MLS (last updated Thu 03/05/2026 12:07:51 AM EST) or Charleston Trident MLS (last updated Wed 03/04/2026 11:32:16 PM EST) or SCCMLS (last updated Wed 03/04/2026 11:16:24 PM EST). Real estate listings held by brokerage firms other than Carolina One Real Estate may be marked with the Internet Data Exchange logo and detailed information about those properties will include the name of the listing broker(s) when required by the MLS. All rights reserved.
Privacy Policy / DMCA Notice / ADA Accessibility

Login to Personal Shopper

Pixel