124 Marble Road | Hardeeville | $1
124 Marble Road Photo 1
124 Marble Road Photo 2
124 Marble Road Photo 3
124 Marble Road Photo 4
124 Marble Road Photo 5
SHOW DETAILS
124 Marble Road Hardeeville, SC 29927 $1
48,000 SQ. FT.

124 Marble RoadHardeeville, SC 29927

For SALE Business ACTIVE
$1
EST. 0.00/MO CALCULATE
48,000 SQ. FT.

Property Description

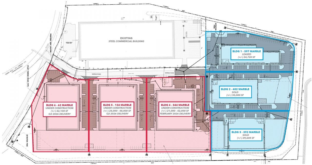
Freedom Industrial Park offers three Class A industrial buildings (42,000-48,000 SF) with 21' clear heights, dock-high and grade-level loading, 3-phase power (400-800 amps, expandable), fiber optic, gas, and build-to-suit office space. The clear-span PEMB buildings with standing seam roofs are ideal for warehouse, distribution, or service users. Just three miles from I-95 and ten minutes from the Port of Savannah, the park sits in an Opportunity Zone with access to South Carolina's 15-year FILOT incentive, which will significantly reduce the TICAM expenses. 124 Marble Road offers 24,000-48,000 SF with two (2) drive-in doors (12'w x 14'h) and two (2) loading docks (8'w x 10'h), build-to-suit office space, and delivery scheduled for Q2 2026. Lease Rate for 48,000+/- SF $15.90 / SF and for 24,000+/- SF $16.50/SF. Contact agent for NNN fees and sale price.

Property Details

  • MLS ID31007007
  • Property TypeCommercial - Industrial
  • Days on Site208
  • Lot Size1.83 Acres
  • Parcel Number0390003027
  • Utilities2
  • Year Built2026
  • acres1.83

Listed By / Shown By

Listed By

Agency Name: Colliers International South C

SCCMLS

Shown By

Agency Title: Carolina One Real Estate
Agency Phone: (843) 203-5016

SCCMLS

IDX logo

124 Marble Road photo 4
124 Marble Road photo 4
124 Marble Road photo 4
124 Marble Road photo 4

Web address QR Codes

124 Marble Road

©OneHomeValue

Location 124 Marble Road

Neighborhood Map

Local Content

Neighborhood Hero

Ask A Question 124 Marble Road, Hardeeville, SC 29927

IDX logo

Disclaimer: All information deemed reliable but not guaranteed. All properties are subject to prior sale, change or withdrawal. Neither listing broker(s) or information provider(s) shall be responsible for any typographical errors, misinformation, misprints and shall be held totally harmless. Listing(s) information is provided for consumers personal, non-commercial use and may not be used for any purpose other than to identify prospective properties consumers may be interested in purchasing. Information on this site was last updated 04/19/2026. The listing information on this page last changed on 04/19/2026. The data relating to real estate for sale on this website comes in part from the Internet Data Exchange program of Delta Media Group MLS (last updated Sun 04/19/2026 12:06:21 AM EST) or Pee Dee MLS (last updated Sat 04/18/2026 10:44:36 PM EST) or CCAR MLS (last updated Sat 04/18/2026 11:26:51 PM EST) or Columbia SC MLS (last updated Sat 04/18/2026 11:57:46 PM EST) or Charleston Trident MLS (last updated Sat 04/18/2026 11:32:19 PM EST) or SCCMLS (last updated Sat 04/18/2026 11:16:16 PM EST). Real estate listings held by brokerage firms other than Carolina One Real Estate may be marked with the Internet Data Exchange logo and detailed information about those properties will include the name of the listing broker(s) when required by the MLS. All rights reserved.
Privacy Policy / DMCA Notice / ADA Accessibility

Login to Personal Shopper

Pixel