0 S Hwy 17 S | Ridgeville | $1,100,000
0 S Hwy 17 S Photo 1
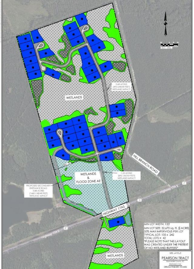
0 S Hwy 17 S Photo 2
0 S Hwy 17 S Photo 3
0 S Hwy 17 S Photo 4
0 S Hwy 17 S Photo 5
0 S Hwy 17 S Photo 6
0 S Hwy 17 S Photo 7
0 S Hwy 17 S Photo 8
SHOW DETAILS
0 S Hwy 17 S Ridgeville, SC 29472 $1,100,000
SQ. FT.

0 S Hwy 17 SRidgeville, SC 29472

For SALE Single Family ACTIVE
$1,100,000
EST. 2,768.96/MO CALCULATE
SQ. FT.

Property Description

****WANT LAND!!**** OVER 140 ACRES!!**** SUMMERVILLE AREA!!** (Just over 5 miles from ''Summers Corner'' Area, (A planned 8,000-home community with soon to come PUBLIX Shopping Center!! --- Currently zoned (SR) Suburban Residential. **Ideal for residential development!! *** Other possible uses: Industrial, Personal Estate, Recreation and Hunting (currently leased to hunt club, w/ approx. $2,000 income per year) -- Property is located ONLY 1.8 Miles from the Edisto River and only 10 minutes from Summerville! -- (Approx. 120 Acres on the North side of Hwy 17A and remainder on the South side of Hwy. 17A) - WATER & SEWER (Currently would need to be Well & Septic, HOWEVER city water & Sewer is coming this way soon, we are told within the next 1-2 years! Which makes this an AMAZING investment!****PLEASE NOTE! - ALL the information we have been able to obtain from the sellers, and any/all third-party organizations, including but not limited to city/county and other entities, has been posted to this MLS (under Documents). If you do not see the item in question (Plat, Survey, Wetlands JD's, Elevation Cert, Etc., it is because we do NOT have them. -- Unless specifically noted, these items in question, will be the buyer's responsibility, either during the DD period or post-closing. Thank you.

Property Details

  • MLS ID25018413
  • Property TypeLand - Farm
  • Days on Site244
  • Lot Dimensions143.40 acre(s)
  • Lot Features10+ Acres, High, Wooded
  • Lot Size143.40 Acres
  • WoodedYes
  • acres143.40

Listed By / Shown By

Listed By

Agency Name: Atlantic Edge Real Estate

Charleston Trident MLS

Shown By

Agency Title: Carolina One Real Estate
Agency Phone: (843) 203-5016

Charleston Trident MLS

IDX logo

0 S Hwy 17 S photo 4
0 S Hwy 17 S photo 4
0 S Hwy 17 S photo 4
0 S Hwy 17 S photo 4

Web address QR Codes

0 S Hwy 17 S

©OneHomeValue

Location 0 S Hwy 17 S

Neighborhood Map

Local Content

Neighborhood Hero

Ask A Question 0 S Hwy 17 S, Ridgeville, SC 29472

IDX logo

Disclaimer: All information deemed reliable but not guaranteed. All properties are subject to prior sale, change or withdrawal. Neither listing broker(s) or information provider(s) shall be responsible for any typographical errors, misinformation, misprints and shall be held totally harmless. Listing(s) information is provided for consumers personal, non-commercial use and may not be used for any purpose other than to identify prospective properties consumers may be interested in purchasing. Information on this site was last updated 03/05/2026. The listing information on this page last changed on 03/05/2026. The data relating to real estate for sale on this website comes in part from the Internet Data Exchange program of Delta Media Group MLS (last updated Thu 03/05/2026 12:08:11 AM EST) or Pee Dee MLS (last updated Wed 03/04/2026 10:44:28 PM EST) or CCAR MLS (last updated Wed 03/04/2026 11:26:49 PM EST) or Columbia SC MLS (last updated Thu 03/05/2026 12:07:51 AM EST) or Charleston Trident MLS (last updated Wed 03/04/2026 11:32:16 PM EST) or SCCMLS (last updated Wed 03/04/2026 11:16:24 PM EST). Real estate listings held by brokerage firms other than Carolina One Real Estate may be marked with the Internet Data Exchange logo and detailed information about those properties will include the name of the listing broker(s) when required by the MLS. All rights reserved.
Privacy Policy / DMCA Notice / ADA Accessibility

Login to Personal Shopper

Pixel